






Kitchen Worktop Lift Baselift Corner 6311LA, 45°- 90°, floor-mounted

Product Overview Lifting systems - Worktops
- Description
- Brand
Description
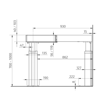
Installation
Floor mounted
Front height
40 mm
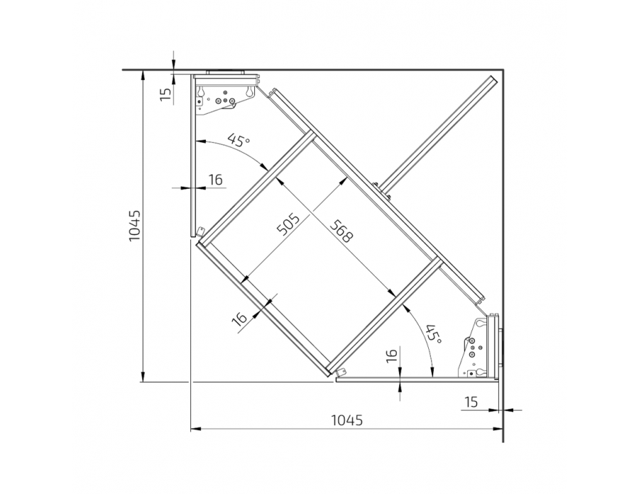
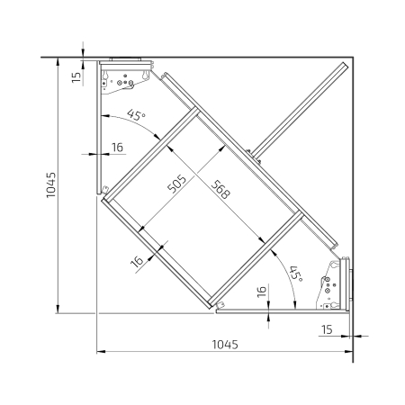
Corner solution
45° front edge, 90° wall
Height adjustment
Motorised, steplessly adjustable 300 mm (700-1000 mm excl. top board)
Speed level
30 mm/sec.
Operation
Corded button or radio control
Safety
The safety strip is placed under the front edge of the worktop.
If anything touches the safety strip, the lifting unit stops
Electrical connection
Plug for 230 V, max 5.0A
Plumbing connections
Connection is made with flexible hoses
Lifting force
100kg
IP-class
IP 20
Frame depth
560-590 mm from wall
Dimensions cover plates
2 pcs, height 438 mm, thickness 12-20 mm
Width worktop
Width = width of the lift
Depth worktop
565-630 mm (15 mm shallower than worktops on fixed cabinets)
Space to wall / adjoining cabinet
5 mm
Space to wall (for tiles)
15 mm
Tiling
From 700 mm above floor (alternatively all the way down to the floor)
Delivery modules
Ready-mounted worktop incl. safety switch, motors
Fittings supplied
Bracket for fronts and top board
Material
Aluminium frame
Warranty
2 years Warranty
This product is covered by a 2-year warranty against manufacturing defects.
Dimensions



104.5 x 104.5 cm
45° front edge, 90° wall
Functions and Advantages
- Can be equipped with drawers, hob and sink
- 30 cm height adjustment
- Adjustable depth, 56 – 59 cm from wall
- Frame in aluminium. Prepared from factory. Movable (sideward) and angle adjustable consoles.
- Electronic and motor system “Plug and Play”
- Safety strip covers the front edge under the worktop. (Installed from factory)
- Brackets and screws for installation of fronts and countertop are included in the delivery







































































































