Designing Disabled Access to Swimming Pools
Working with Our Technical Team to Design Disabled Access Environments
In order to create desirable accessible environments, all technical experts should be consulted as early in the design process as possible to ensure a well considered space.
As part of our large portfolio of projects; OpeMed design, supply and build Swimming Pool disabled access environments for hoisting within changing rooms and into the Swimming Pool itself. Our clients are often installing into public Swimming Pools within Leisure Centres, into Rehabilitation Suites and Private Hydrotherapy Units for improved access and support for disabled users and their carers.

Specifically, we are one of the leading manufacturers of ceiling hoists and ceiling track in the UK. We are adept at designing and creating bespoke tracking systems for any room, we also have a wide range of transfer and care equipment including height adjustable changing benches, shower chairs and Swimming Pool Hoists.



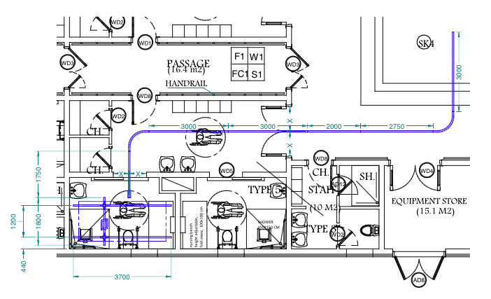
Designing Disabled Access Rooms: CAD Illustrations
As seen in the above ‘CAD snapshot’ examples, we are able to demonstrate to the client a number of options for user transfer around the changing area, therapy rooms and into the swimming pool. The H frame (or XY) room covering system shown in the illustrations is installed usually to provide coverage of the whole room so that users can be moved from changing bench to toilet or wheelchair for example. H frame systems can easily be connected to other H frame systems or simply connected to a straight or curved rail to transport out of the room. When designing for disabled accessibility in a Swimming Pool, we try to make the user’s ‘journey’ to their destination as dignified as possible by installing a smooth and quiet OT200 Ceiling Hoist as well as providing various opportunities for the user to be transferred on a wheelchair, shower chair or pool seat.
Making it User Friendly
We always aim to keep the user group in mind whilst using the facility including their experience of using the equipment. This may involve considering the accessibility of the building on the whole (including access statements), usually it will also involve looking at wheelchair turning space, the available changing facilities and potential space for Changing Places toilets. As a manufacturer of transfer and care equipment and co-sponsor of the Changing Places campaign we are well positioned to offer technical expertise, CAD illustrations and product demonstrations for any product configuration.
By involving OpeMed early on in the design process, we are able to advise on any reinforcements to the ceiling or walls that may need to be made, as well as the space available vs ideal space for turning and transferring. We also will look at the best options for hoisting in and out of the Swimming Pools as we have a number of Swimming Pool hoists we recommend but may not be suitable for every project we work on.
For more details on the illustrations shown above or to get a quotation on equipment for disabled access in Swimming Pools contact us directly.
